Hjem
Nedlasting
Eksempel på baderom
e-mail me

Renovering av baderom


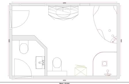
Eksempel baderom_Side_1.jpg

Opprinnelig løsning på bad og bod

Kunde ønsker å slå sammen bad og bod, samt laget en liten wc for å få ett gjeste toalett. Løsningen blir valgt i samarbeid med kunde, hvor vi i sammen kommer frem til ny planløsning

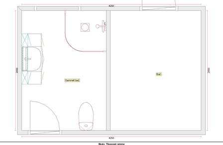
Eksempel baderom_Side_2.jpg

Ny planløsning av baderom og wc

Her har vi fjernet vegg mot bod, det innebærer å pigge ut eksisterende betonggulv for å flytte røropplegg/sluk, nye varmekabler og nytt betonggulv. Dør fra gammel bod fjernes og vi setter inn ett vindu av glassbyggerstein. Vi lager ny døråpning fra soverom til badet. Det nye gjestetoalettet bruker eksisterende baderomsinngang. Begge badene får vegghengte wc'er........

Eksempel baderom_Side_3.jpg

Her får kunde se visuelt hvordan baderom og wc vil bli etter ombygning.

Nytt bad sett fra toalett mot innredning og nytt glassbyggesteinsvindu...
 

Her er sett fra badekar...

 

Fra baderonsdør...

 

 Her er nytt gjestetoalett...